BETA
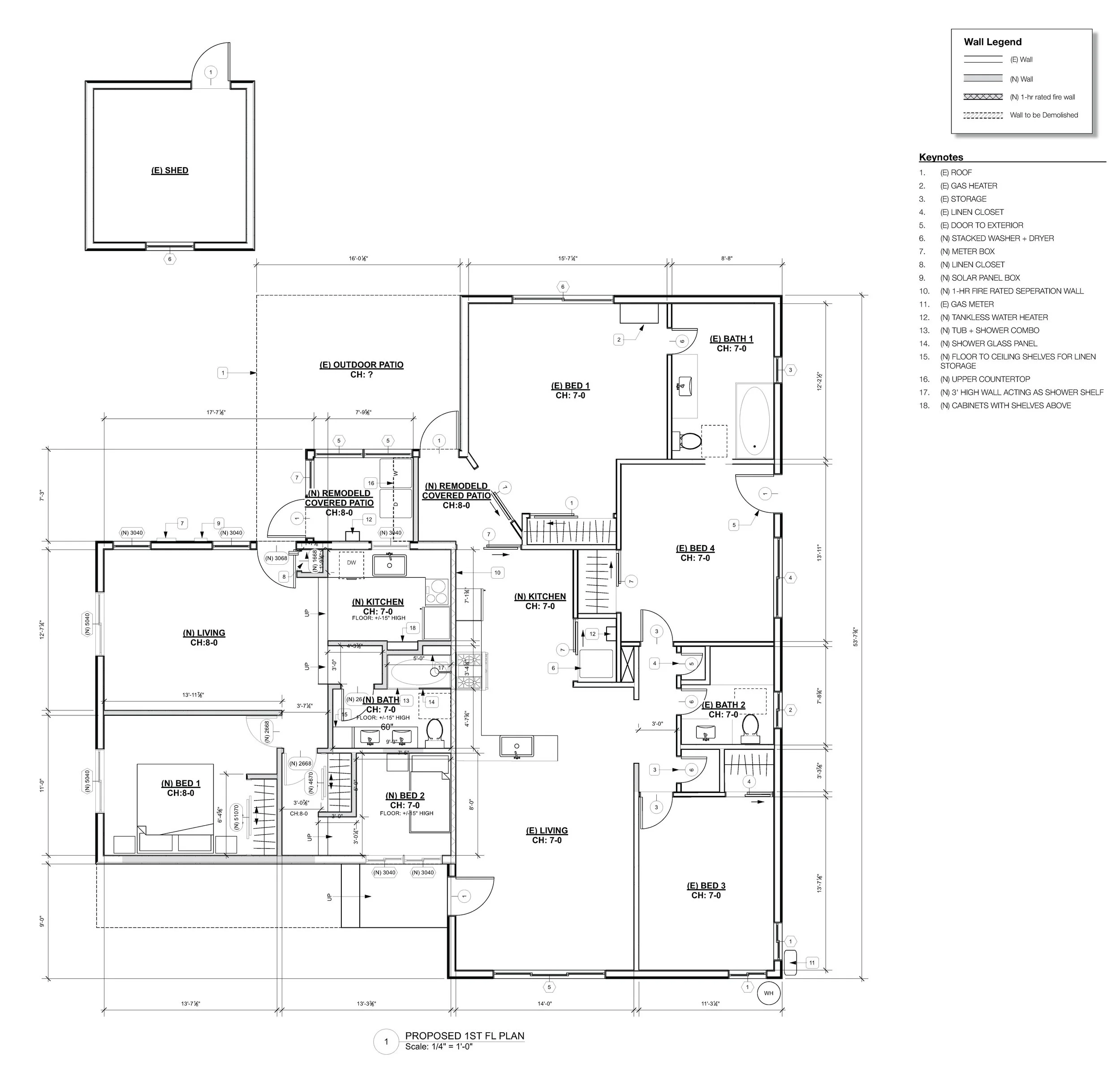
REMODEL OF EXISTING HOME TO substitute SOME AREA INTO THE NEW CONVERSION OF EXISTING GARAGE TO A A NEW ATTACHED TWO BED ONE BATH UNIT.
PROJECT YEAR: 2023 PROJECT STATUS: UNDER REVIEW PROJECT FIRM: COMPASSION BY DESIGN
REMODEL OF EXISTING HOME TO substitute SOME AREA INTO THE NEW CONVERSION OF EXISTING GARAGE TO A A NEW ATTACHED TWO BED ONE BATH UNIT.
PROJECT YEAR: 2023 PROJECT STATUS: UNDER REVIEW PROJECT FIRM: COMPASSION BY DESIGN